Services
Laserscanning innen & aussen
2D Grundrisse, Schnitte & Ansichten
Kostenloser 360 Grad Fotoviewer
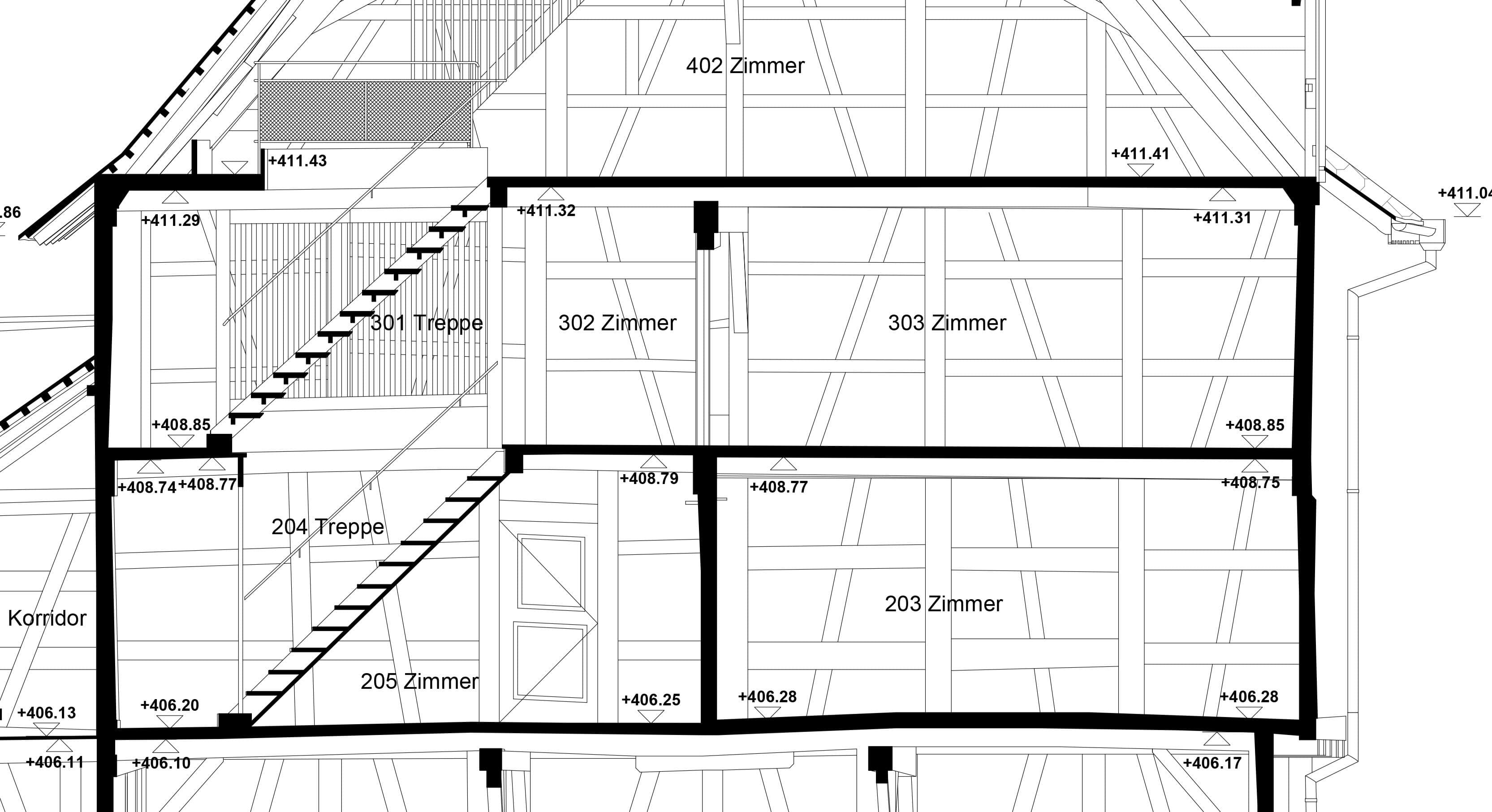
2D-Gebäudeschnitt eines Bestandsgebäudes, abgeleitet aus 3D-Laserscanning für Planung im Bestand durch VDE
2D-Fassadenplan eines Bestandsgebäudes aus präziser Gebäudevermessung als Grundlage für Sanierungs- und Umbauplanung durch VDE
2D-Gebäudeschnitt eines Bestandsgebäudes, abgeleitet aus 3D-Laserscanning für Planung im Bestand durch VDE
Architektur-Schnittzeichnung eines mehrstöckigen Hauses mit Satteldach: Detailansicht von Geschossen, Treppen, Räumen und Höhenmaßen im Bauplan
Architektur-Grundriss eines länglichen Gebäudes mit mehreren Räumen, Fluren, Treppenbereich und Maßen; schwarz-weißer Plan mit grünen Markierungen und Beschriftungen.
Architektur-Grundriss eines langgestreckten Gebäudes: detaillierter Plan mit mehreren Räumen, Fluren, Sanitärbereichen und markierten Türen/Fenstern, schwarz-weiß mit grünen Linien und Maßangaben.
Technischer Grundriss eines Gebäudes mit zwei rechteckigen Hallenbereichen, markierten Räumen, Maßangaben und Beschriftungen; Übersicht der Innenaufteilung und Flächen.
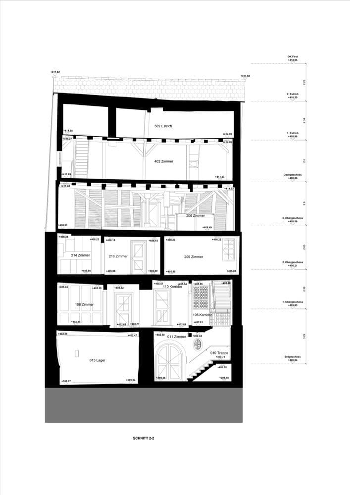
Architektur-Schnittzeichnung eines mehrgeschossigen Gebäudes mit Raumaufteilung, Deckenhöhen und Maßangaben – technischer Bauplan im Querschnitt.
2D-Fassadenplan eines Bestandsgebäudes aus präziser Gebäudevermessung als Grundlage für Sanierungs- und Umbauplanung durch VDE
2D-Fassadenplan eines Bestandsgebäudes aus präziser Gebäudevermessung als Grundlage für Sanierungs- und Umbauplanung durch VDE
2D-Fassadenplan eines Bestandsgebäudes aus präziser Gebäudevermessung als Grundlage für Sanierungs- und Umbauplanung durch VDE
Individuelle
Beratung

Weitere Referenzen
aus dieser Kategorie

Münsterhof.jpeg
MC-Donalds-Luzern-OV.jpg
Ein modernes Holzhaus mit großem Balkon auf stufigem Untergrund.

Villa Digital
Engineering AG

Tittwiesenstrasse 21
7000 Chur

Zwicky-Platz 9
8304 Wallisellen

Zugerstrasse 53
6340 Baar

Neugasse 12
9000 St. Gallen


mail@vde.ch